BLEND Architecten

Verbouwen van een woning

Restauratie - Brasschaat, 2020

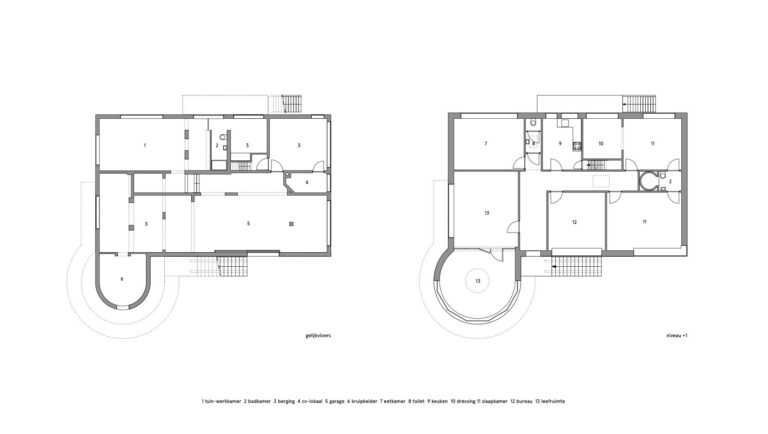
In 1935 bouwt de Nederlandse architect Petrus De Nijs samen met zijn zoon Cornelis zijn eigen woning met architectenkantoor in een modernistische stijl langs de Bredabaan. Hij zal hier enkele jaren wonen en werken om dan de woning te verkopen. De nieuwe eigenaars wensen zich echter een villa met rieten dak. In die verschijning is de woning dan ook decennia gekend.

In 2020 koopt de huidige eigenaar de woning en al snel wordt duidelijk dat er een parel van moderne architectuur verscholen zit in zijn recente aankoop. Het tijdschrift BÂTIR van maart 1937 handelend over ‘architectures modernes dans les provinces d’Anvers et de Limbourg’ geeft een uitgebreide beschrijving van het gebouw. Aan de hand van deze beschrijving en uitgebreid sporenonderzoek wordt de woning gerehabiliteerd en met veel respect tegelijkertijd aangepast aan de nieuwe energetische- en comforteisen van vandaag. Verloren gegane planelementen zoals bv. de trap naar en het solarium op het hoofddak worden in ere hersteld.
Een nieuw tuinontwerp is een aanvulling op de architectuur.