Uitbreiding van een orthodontiepraktijk
Verbouwing - Hoogstraten, 2017De oorspronkelijke woning werd gebouwd in de jaren ‘70 en bevat de kenmerken van het toenmalig modernisme qua materiaalgebruik en gevelopbouw. Om het aanzienlijke niveauverschil tussen straat en tuin te overbruggen ontwierp de architect de woning binnen het splitlevel principe.







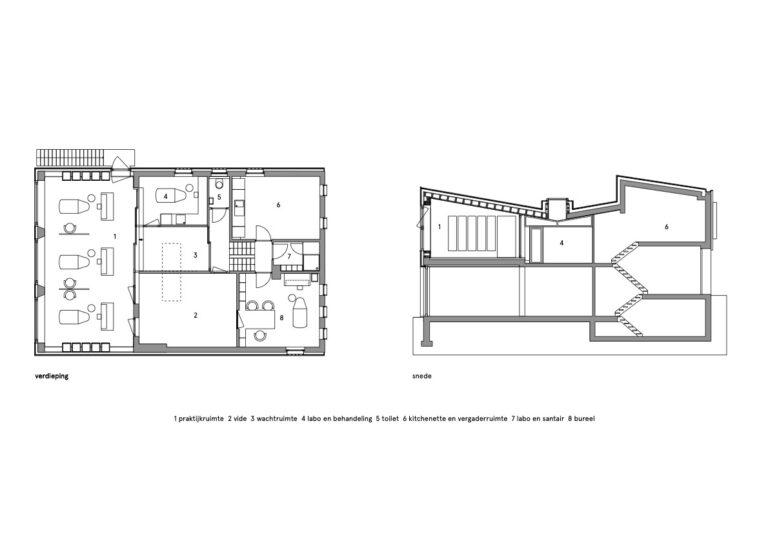
Het splitlevel principe blijkt bijzonder relevant te zijn om de woning te hergebruiken waarbij de praktijkruimte geschakeld en doorlopend kan georganiseerd worden langsheen alle verdiepingen. Wij werden gevraagd de praktijkruimte uit te breiden op verdieping, de praktijkruimte gelijkvloers was reeds aanwezig. Rekening houdend met de plaatselijke problematiek inzake grondweerstand werd gekozen voor een lichtgewicht houten opbouw. De verweerde toestand van de bestaande bakstenen gevels en betonnen lateien en het gebrek aan muur- en dakisolatie noopte tot de gehele inkleding van het gebouw. Er werd gebruik gemaakt van geprefabriceerde isolerende sandwichpanelen afgekleed met zink. De zijgevelramen werden ondergeschikt gemaakt gezien de nabijheid van de buren door middel van beperkte ronde gevelperforaties. Het vlindervormige dak brengt licht tot in het centrum van het gebouw.
Het materiaalgebruik binnenin, vloeren, meubels, trappen, verlichting werd bijzonder duurzaam gekozen en gedetailleerd.








Fotografie: http://evenbeeld.be