Nieuwbouw van een woning
Nieuwbouw - Weelde, 1983De woning met artsenpraktijk werd ontworpen en gebouwd in de jaren negentig in het dorp Weelde. De bijzonder gedreven en inspirerende bouwheer formuleerde naast een strikt bouwprogramma het verlangen naar een historiserende beeldtaal die bouwkundig zowel exterieur als interieur werd uitgewerkt.








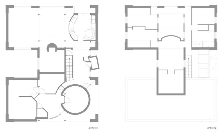
Om een antwoord te geven aan deze ‘beladen’ opdracht werd een basispatroon ontworpen bestaande uit 2 rechthoekig geschakelde bouwvolumes (voor- en achterbouw) waarbij per bouwvolume de L-vormige hoeken (bekleed met natuursteen Blanc de Bièrges) de draagconstructie vormen met centraal zwarte metalen kolomdragers. Deze eenvoudige en minimale draagconstructie laat toe tussenin en onderdoor naar verlangen van de bouwheer te organiseren en gedetailleerd uit te werken.
Het voorgebouw, wat de artsenpraktijk herbergt, is als het ware een tafel waaronder bouwkundig onafhankelijk de praktijkruimtedeling wordt georganiseerd naar de strikt gevraagde noodzaak. De ronde wachtzaal moet de communicatie tussen de patiënten bevorderen.
Het achtergebouw, wat de woning bevat, bezit gelijkvloers een dubbele hoge woonruimte gekoppeld aan een met kerselaar ingeklede centrale gelijkvloerse haardruimte. Er wordt bijzondere aandacht besteed aan vloerpatronen en wandprofilering rondom de ramen in de gehele woning. Bij de initiële kleurstelling van wanden werd onderscheid gemaakt van dragend en niet-dragende structuurelementen.
Einde vorige eeuw vroeg de bouwheer de praktijkruimte uit te breiden wat uitmondde in de vorm van een geschakelde ‘andere’ witte architectuur.










