Bouwen van een woning
Nieuwbouw - Turnhout, 2020De woning bevindt zich in een recente verkaveling aan de rand van Turnhout op fietsafstand van het centrum.








De rigide verkavelingsvoorschriften leggen beperkingen op aan het maximale bouwvolume. Het is gekend: een hoofdgebouw 9m diep dubbelhoog waarop een zadeldak, een achterbouw 6m diep dubbel hoog en zijgebouw met garage in een volume, verrassend dubbel hoog. Wat opvalt is dat alle woningen in de wijk globaal analoog opgelost dienen genoemd, zij verschillen voornamelijk in keuze gevelsteen en dakpan alle tinten van zwart/grijs. Het perceel bevindt zich op een specifieke locatie in de straat, nl. ter hoogte van een beperkte straatknik, wat met enthousiasme wordt onthaald in het ontwerp.
De specifieke ontwerpkeuze van de verdieping op de achterbouw te gebruiken als buitenruimte (ontbijtterras) doet mogelijkheden ontstaan binnenin met betrekking tot centrale ruimtelijkheid, bezonning en lichtintrede. Een sterke architecturale tektoniek kan worden ontwikkeld.

Het tuinpaviljoen strekt zich uit over de volledige breedte van het perceel, wat bijdraagt tot een intense beleving van de tuin en de verbondenheid met de woning. Ze bestaat uit een open overdekte buitenruimte waarin een buitenkeuken en berging/sanitair. Het materiaalgebruik in het tuinpaviljoen is analoog opgebouwd aan de woning.

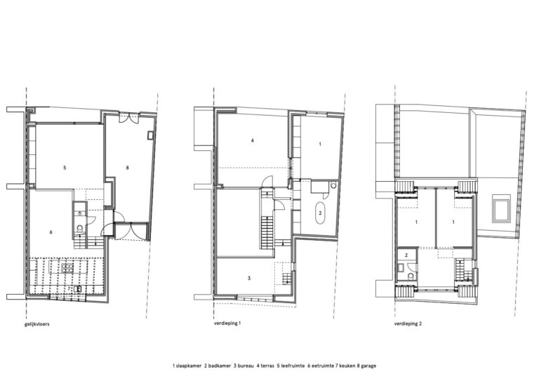
Het binnenkomen valt met de deur in huis, vanuit de inkom staat men onmiddellijk in de  dubbelhoge centrale keuken- en leefruimte. De keuken bevindt zich 60cm opgetild boven het maaiveld aan de straatzijde en geeft uitzicht overheen de woonruimte naar de tuin, van bovenuit centraal voorzien van licht via het verdiepingsterras. De centraal geplaatste trapconstructie slingert langs en doorheen de aangrenzende ruimten overheen de verdiepingen, van keuken naar bordes aan de grote slaapkamer en het dakterras om dan via de bureauruimte boven de keuken op te klimmen via een smalle Z-trap naar de kinderslaapkamers onder de dakkap.
De inspirerende bouwheer maakte de keuze het gebruik van materialen te laten zijn wat ze zijn en ze niet te verbergen achter pleisterwerk of afkledingen. De gehele woning werd buiten en binnenin opgebouwd met zichtbaar metselwerk in doorlopend verband gecombineerd met houten trap- en meubelwerk wat een geborgen gevoel geeft. De resolute keuze voor een rode gevelsteen fleurt het straatbeeld op. Het grote straatgevelraam biedt uitzicht en brengt licht van het noorden tot in de keuken en het bureau. Het raam is uitgewerkt met diepe raamkozijnen waardoor het niet direct inspirerende straatlandschap wordt gefragmenteerd.








Fotografie:Â http://evenbeeld.be